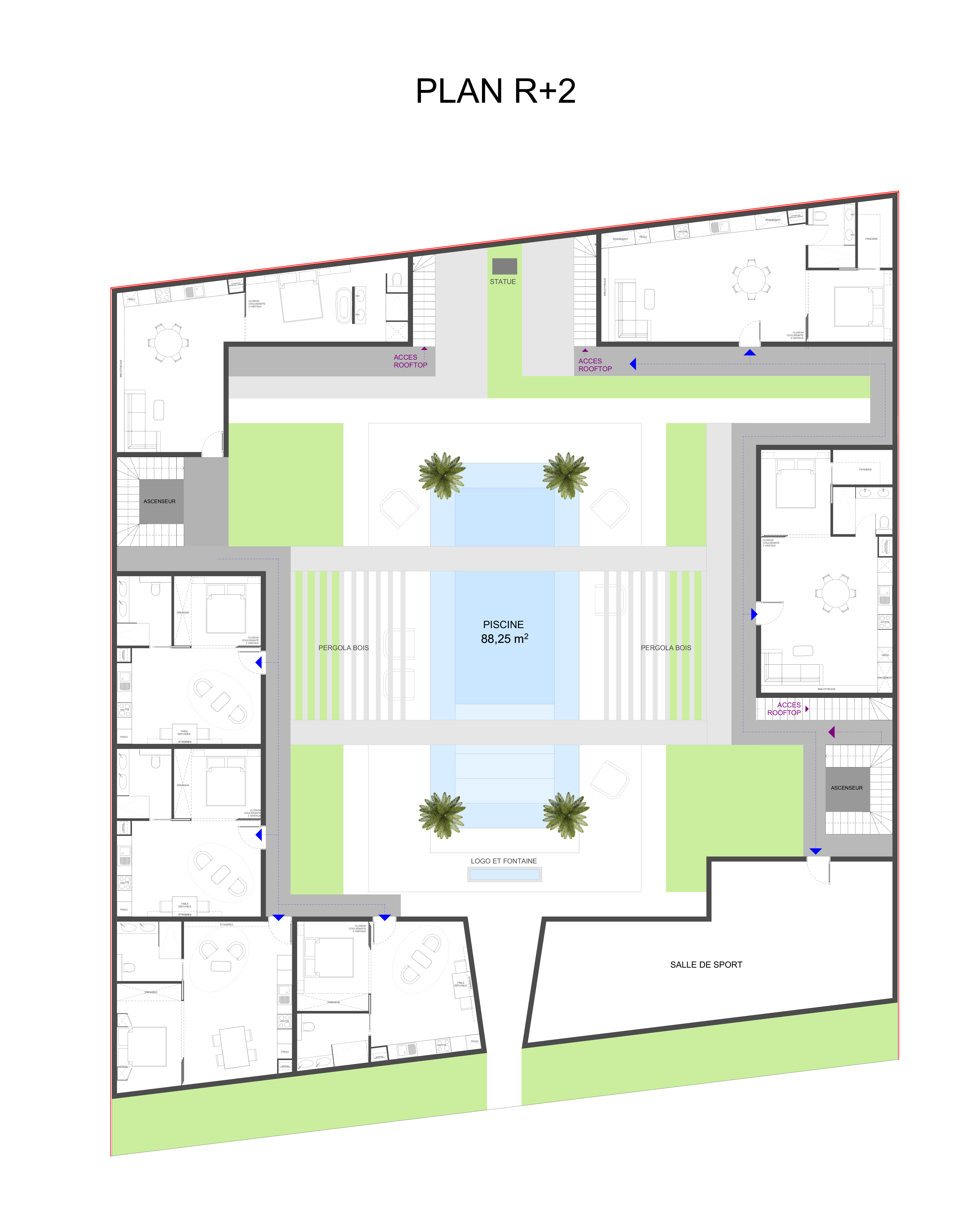
Le projet El Mana, situé à Tulum au Mexique, se compose de 25 logements disposés autour d’une piscine centrale. La circulation est innovante, avec deux passerelles au premier étage permettant de circuler au-dessus du bassin. Une salle de sport se trouve à l’étage, et des statues ponctuent le jardin. Ce projet a été réalisé en collaboration avec Barth Architecture.














