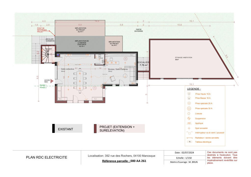
Le projet de rénovation de la bâtisse existante comprend deux extensions de part et d’autre, ainsi qu’une surélévation. Le terrain, très en pente, implique une construction en partie semi-enterrée. Une grande piscine, s’ouvrant sur le jardin, y est également ajoutée. Toutes les menuiseries sont agrandies. Un grand escalier en saillie à l’extérieur est prévu pour desservir les différents niveaux. Il se compose d’éléments de type claustra, créant un jeu de formes avec du bois et du verre.

























